MArch in Architecture (RIBA Part 2)

Anna Henshall 2019

Cirque Du Shieldfield: A Commons Based Civic Movement

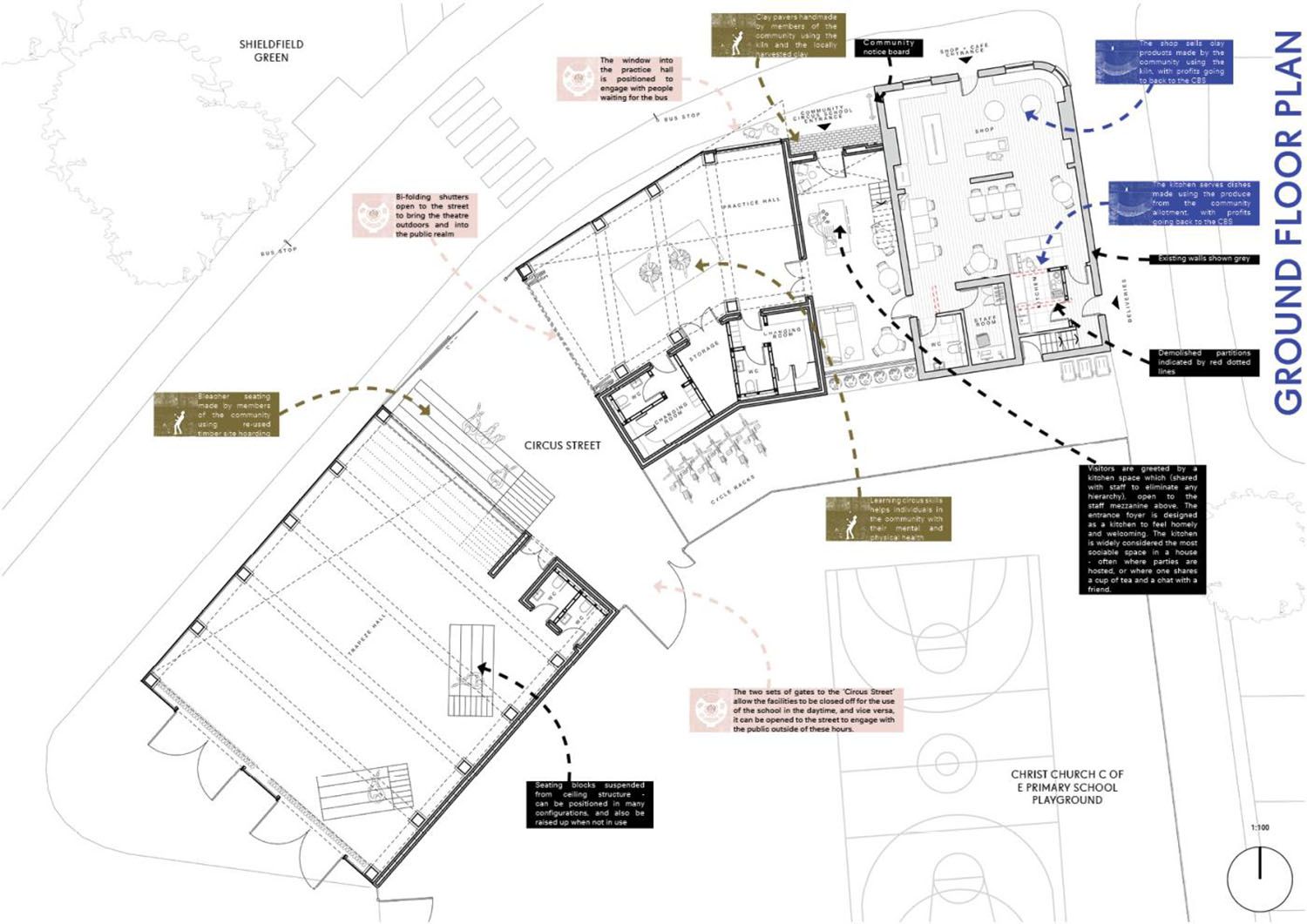
The residents of Shieldfield in Newcastle-Upon-Tyne are living in fear of displacement with a feeling of very little control over development in their neighbourhood. The land is valuable due to its proximity to the university, and urban space is being sold off by the council to private developers for maximum profit. The issue faced is that once these assets are sold off, they become lost to the community forever. ‘Cirque Du Shieldfield’ explores a method for dealing with this national issue, utilising talents of residents to regenerate a neighbourhood in a positive way for the community. The architect develops a brief with the residents through a series of workshops and the development of a skills matrix, which reveals the available expertise in the neighbourhood. Due to the presence of a circus school, many residents have unique skills such as rigging, street performing and working at heights. A new circus school and community centre is initiated as a self-build project which draws on the skills of participants. In a circus big top, diverse groups and individuals are brought together and celebrated for their talents and individuality. The circus concept is explored throughout the project, both metaphorically and through physical intervention.